Aller au contenu principal
Pierre Thirion
Portfolio
Portfolio
Curriculum vitae
Bains Léopold Bellan
Une fabrique deu0026nbsp;citronnade
Anatole Café
Tiny-Sheep
Pollux
Tatami
Stand
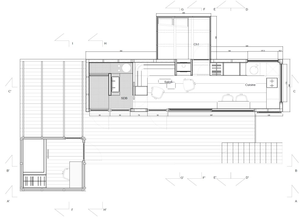
Tiny-Sheep
2020 / Projet
conctact@pierrethirion.fr
Chargement des commentaires…
Écrire un commentaire...
E-mail (requis)
Nom (requis)
Site web
Pierre Thirion
S’inscrire
Connexion
Copier lien court
Signaler ce contenu
Gérer les abonnements